3 Bedroom
2 Bathroom
1500 - 2000 sqft
Bungalow
Central Air Conditioning
Forced Air
$729,900
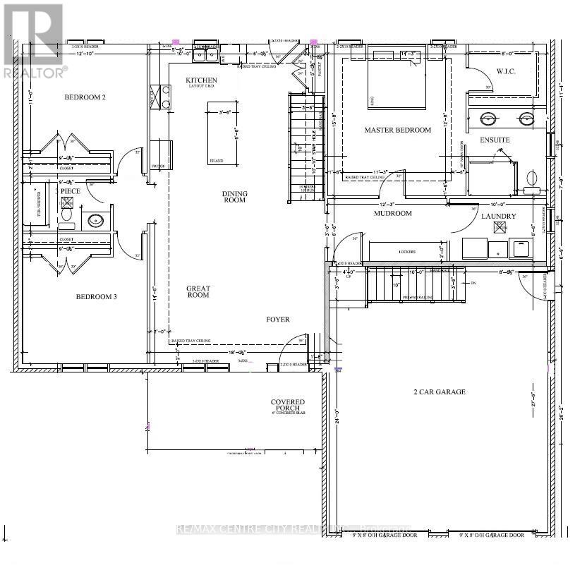
Built with pride by Wagler Homes, this brand-new 1682 sqf bungalow with an unfinished and additional 1682 sqft in the basement, blends quality craftsmanship with a smart, modern layout. The main floor features an open-concept living, dining, and kitchen with quartz countertops, island, and precision-built cabinetry. There is a main 4-pc main bath,Three bedrooms (or two plus an office) with a privacy loving split floor plan, a 3-pc ensuite with a rain shower, and a conveniently oversized mud room and separate main floor laundry room. A major highlight is the lower level, which has its own separate entrance and is framed, wired, and plumbed for a future second living space-ideal for multi-generational living or income potential.Enjoy outdoor living with a covered rear patio, gas BBQ line, covered front verandah, and a double-wide concrete driveway. upgraded power with a 200-amp service (suitable for electric car charging in the future), gas HVAC, HRV, and owned hot water on demand add comfort and efficiency. Tarion Warranty and HST included. (id:19173)
Property Details
|
MLS® Number
|
X12867778 |
|
Property Type
|
Single Family |
|
Community Name
|
Straffordville |
|
Equipment Type
|
None |
|
Features
|
Level Lot, Level, Carpet Free, Sump Pump |
|
Parking Space Total
|
6 |
|
Rental Equipment Type
|
None |
|
Structure
|
Patio(s) |
Building
|
Bathroom Total
|
2 |
|
Bedrooms Above Ground
|
3 |
|
Bedrooms Total
|
3 |
|
Age
|
New Building |
|
Appliances
|
Garage Door Opener Remote(s), Water Heater - Tankless, Water Heater |
|
Architectural Style
|
Bungalow |
|
Basement Features
|
Separate Entrance |
|
Basement Type
|
Full |
|
Construction Style Attachment
|
Detached |
|
Cooling Type
|
Central Air Conditioning |
|
Exterior Finish
|
Concrete, Stone |
|
Foundation Type
|
Concrete |
|
Heating Fuel
|
Natural Gas |
|
Heating Type
|
Forced Air |
|
Stories Total
|
1 |
|
Size Interior
|
1500 - 2000 Sqft |
|
Type
|
House |
|
Utility Water
|
Drilled Well |
Parking
Land
|
Acreage
|
No |
|
Size Depth
|
143 Ft ,4 In |
|
Size Frontage
|
68 Ft ,10 In |
|
Size Irregular
|
68.9 X 143.4 Ft |
|
Size Total Text
|
68.9 X 143.4 Ft|under 1/2 Acre |
|
Zoning Description
|
R1 |
Rooms
| Level |
Type |
Length |
Width |
Dimensions |
|
Main Level |
Living Room |
5.49 m |
3.66 m |
5.49 m x 3.66 m |
|
Main Level |
Dining Room |
5.49 m |
2.44 m |
5.49 m x 2.44 m |
|
Main Level |
Kitchen |
5.49 m |
3.66 m |
5.49 m x 3.66 m |
|
Main Level |
Bedroom |
4.79 m |
4.34 m |
4.79 m x 4.34 m |
|
Main Level |
Bedroom 2 |
3.96 m |
3.9 m |
3.96 m x 3.9 m |
|
Main Level |
Bedroom 3 |
3.96 m |
3.9 m |
3.96 m x 3.9 m |
|
Main Level |
Bathroom |
2.74 m |
1.74 m |
2.74 m x 1.74 m |
|
Main Level |
Bathroom |
2.74 m |
2.44 m |
2.74 m x 2.44 m |
|
Main Level |
Laundry Room |
3.05 m |
1.98 m |
3.05 m x 1.98 m |
|
Main Level |
Mud Room |
3.72 m |
1.98 m |
3.72 m x 1.98 m |
Utilities
|
Electricity
|
Installed |
|
Sewer
|
Installed |
https://www.realtor.ca/real-estate/29452794/56087-maverick-court-bayham-straffordville-straffordville